1-комнатная квартира, 47.40 м², 7 из 35 эт.
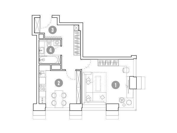
Планировка
План этажа
Ход строительства
6 похожих планировок
На других этажах
Дешевле
Дороже
Большей площади
Меньшей площади

Ипотека
от 170 001 ₽/мес.

Ипотека
от 174 463 ₽/мес.

Ипотека
от 168 236 ₽/мес.

Ипотека
от 336 198 ₽/мес.

Ипотека
от 294 106 ₽/мес.

Ипотека
от 234 540 ₽/мес.